Bilocale in vendita

Castel Maggiore, Piazza Lorusso
€ 237.000
2 locali 2 locali
65 Mq 65 Mq
1 bagno 1 bagno

Bilocale in vendita

Castel Maggiore, Piazza Lorusso

Descrizione annuncio

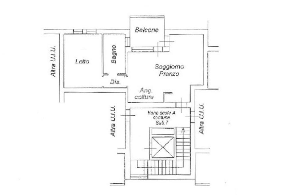
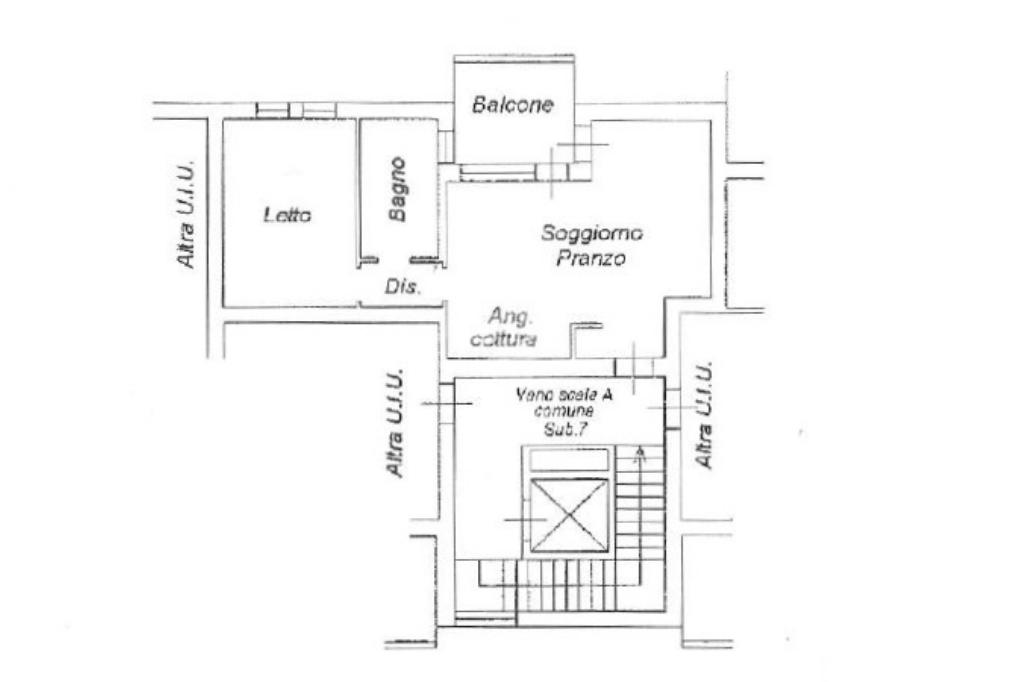
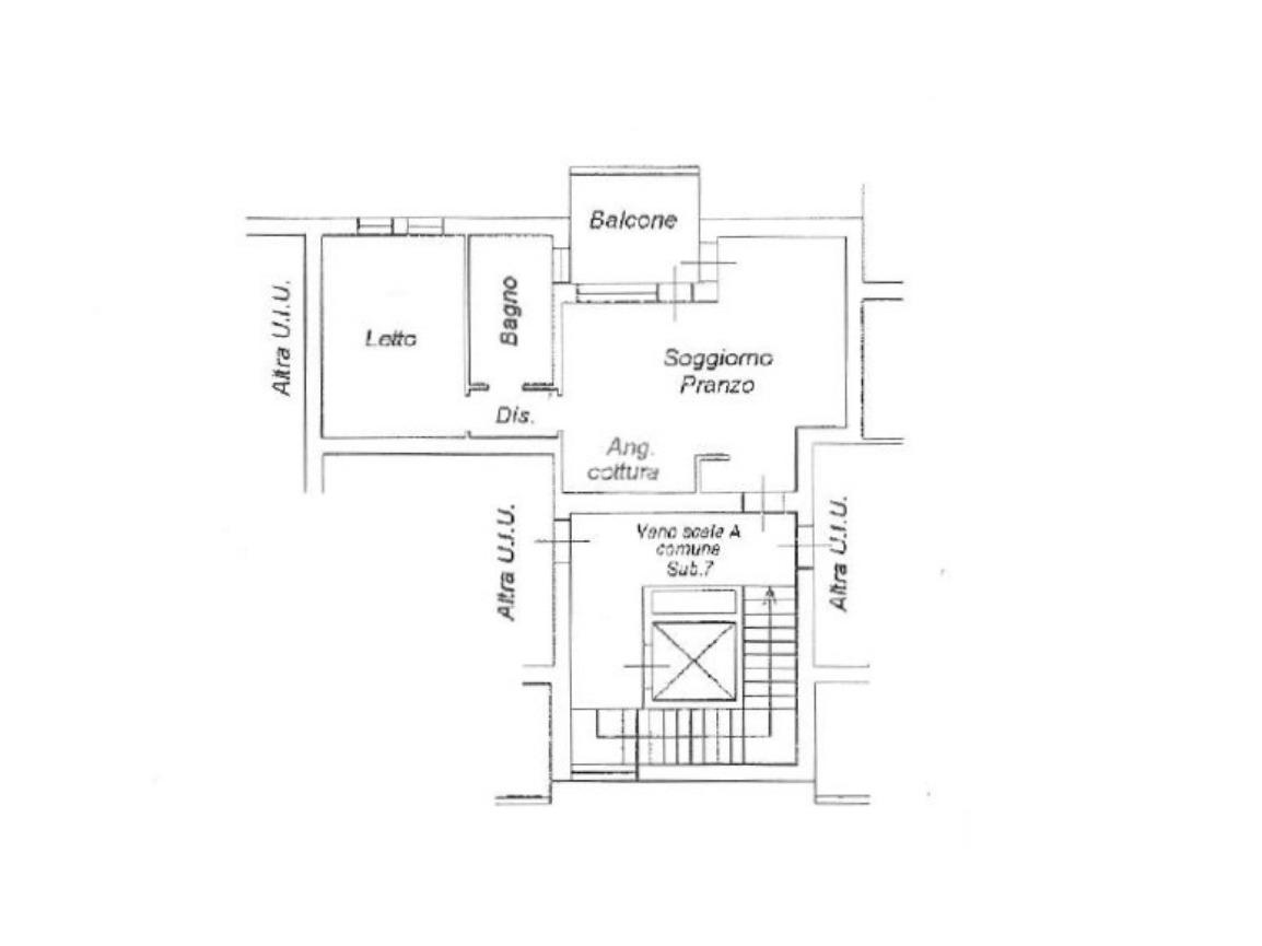
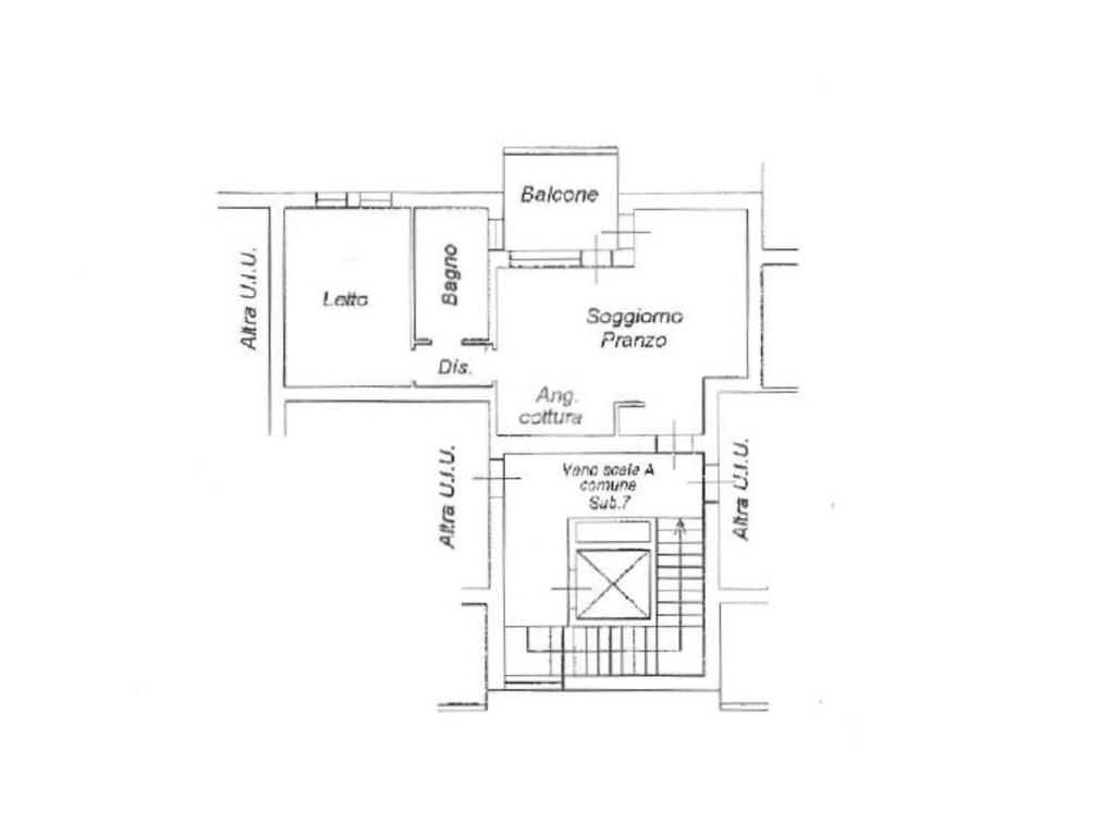
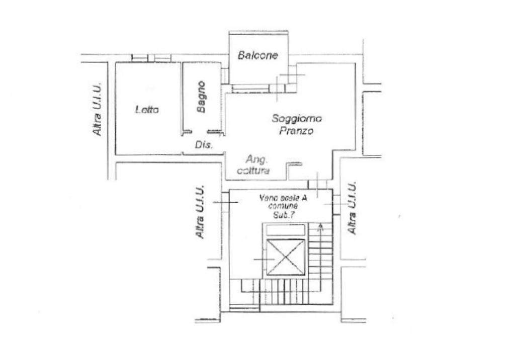
CASTEL MAGGIORE: In palazzina del 2009, dotata di ascensore, appartamento di 65 mq, situato al 3°piano, luminoso e con spazi ben distribuiti.
L'ingresso si apre su un ampio Soggiorno con Cucina a vista e un doppio affaccio al Balcone coperto. La zona notte comprende una camera da letto spaziosa, che garantisce comfort e tranquillità. Il bagno, moderno e ben rifinito, completa l'offerta abitativa.
Al piano seminterrato sono compresi Cantina e Garage.
La posizione strategica dell'appartamento consente di raggiungere facilmente i principali servizi e le aree verdi del comune. L'edificio, di recente costruzione, assicura standard abitativi contemporanei e un contesto residenziale curato. Una soluzione ideale per chi cerca un'abitazione accogliente e ben collegata nel comune di Castel Maggiore.

Per maggiori informazioni o per un eventuale sopralluogo ci potete contattare al numero 051.6056506 oppure 3485210130 (anche whatsapp).

Forniamo Valutazioni gratuite e senza impegno in caso di necessità di vendita o locazione del vostro immobile.
Siamo inoltre affiancati da partner locali che possiedono specifiche competenze notarili, creditizie, tecniche e legali, sempre pronti ad offrire la loro consulenza.

Mostra tutto

Nelle vicinanze

Trasporto pubblico Trasporto pubblico
stazione di Castelmaggiore
stazione di Castelmaggiore
190 m
stazione di Funo Centergross
stazione di Funo Centergross
2,0 Km
Castel Maggiore Stazione
Castel Maggiore Stazione
220 m
Castel Maggiore Bondanello
Castel Maggiore Bondanello
300 m
Ricariche auto elettriche Ricariche auto elettriche
Campi Sportivi Castel Maggiore | EnelX
820 m
Scuole Scuole
Scuole
300 m
Farmacia Farmacia
Farmacia Castello
190 m
Sorace Maresca
380 m
Farmacia Comunale
970 m
In Farmacia
1,2 Km
Parafarmacia Conad
1,4 Km
Ospedali Ospedali
Poliambulatorio AUSL
830 m
Supermercati Supermercati
Tigotà
340 m
inCoop
350 m
Lidl
760 m
EuroSpin
980 m
La Saponeria
1,2 Km
Negozi Negozi
Antichi Sapori
310 m
Herba Salus Cosmetici, Medicinali Omeopatici, Integratori Alimentari
330 m
Panificio Busoli
380 m
Negozi
450 m
Cheope
490 m
Bar Bar
Bar Progresso
350 m
Bar Sport
530 m
Alterego
1,2 Km
Bar Tarola
2,0 Km
Ristoranti Ristoranti
Pizzeria Le Rose 2
540 m
Pizzeria Due Forni
620 m
La Scuderia
630 m
Ristorante La Scuderia
640 m
Il Piccolo Borgo
680 m
Mostra tutto

Caratteristiche

Rif.:
61146401
Piano:
3 di 4 con ascensore (Piano alto)
Box:
1
Balconi:
1
Camere da letto:
1
Arredamento:
Assente
Mostra tutto
Prezzo Prezzo
€ 237.000
Rata mutuo Rata mutuo
€ 1.119 / mese
Spese annue Spese annue
€ 1.000
Proponi il tuo prezzoProponi il tuo prezzo

Classe Energetica

C
C
C
C
C
C
C
C
C
EP globale non rinnovabile:
72.95 kW h/m² anno
Anno di costruzione:
2009
Riscaldamento:
Centralizzato
Tipo impianto:
A radiatori
Tipo alimentazione:
Metano

Ti interessa visionare l'immobile?

Fissa un appuntamento  Fissa un appuntamento

Richiedi informazioni

Clicca su Leggi per aprire l'informativa
* Questi campi sono obbligatori

Calcola il tuo mutuo

Semplice e senza impegno
Anticipo

( % )
Mutuo

( % )

pochi semplici passi

inserisci i tuoi dati
Questionario completato
Grazie per aver richiesto un appuntamento senza impegno con un nostro Consulente del Credito e Assicurativo.

Hai inserito correttamente tutti i dati necessari e a breve riceverai una e-mail con un link da convalidare per inviare i tuoi dati.
Affiliato
Azienda.net Srl
Via San Donato, 205/A 40057 Granarolo Dell'Emilia (BO)

Il nostro staff


  • Marcello Vandelli
    Responsabile

  • Elisa Dioli
    Coordinatrice

  • Lorenzo Bovinelli
    Responsabile
Via San Donato, 205/A 40057 Granarolo Dell'Emilia (BO)
Zona: Granarolo Dell'Emilia-Cadriano-Lovoleto-Quarto inferiore-Viadagola
Mostra su mappa
Orari: Tutti i giorni 09:00 - 13:00 e 15:00 - 20:00 il sabato 09:00 - 13:00 e pomeriggio su appuntamento
Affiliato
Azienda.net Srl
Via San Donato, 205/A 40057 Granarolo Dell'Emilia (BO)

2025 Tecnocasa Franchising S.p.A. - P. IVA 08365160152 - Via Monte Bianco 60/A 20089 Rozzano (MI). Ogni agenzia ha un proprio titolare ed è autonoma. Privacy policy | Policy utilizzo | Cookie policy