Attico in vendita

Granarolo Dell'Emilia, Via san donato
€ 480.000
Prezzo aggiornato
4 locali 4 locali
145 Mq 145 Mq
2 bagni 2 bagni

Attico in vendita

Granarolo Dell'Emilia, Via san donato

Descrizione annuncio

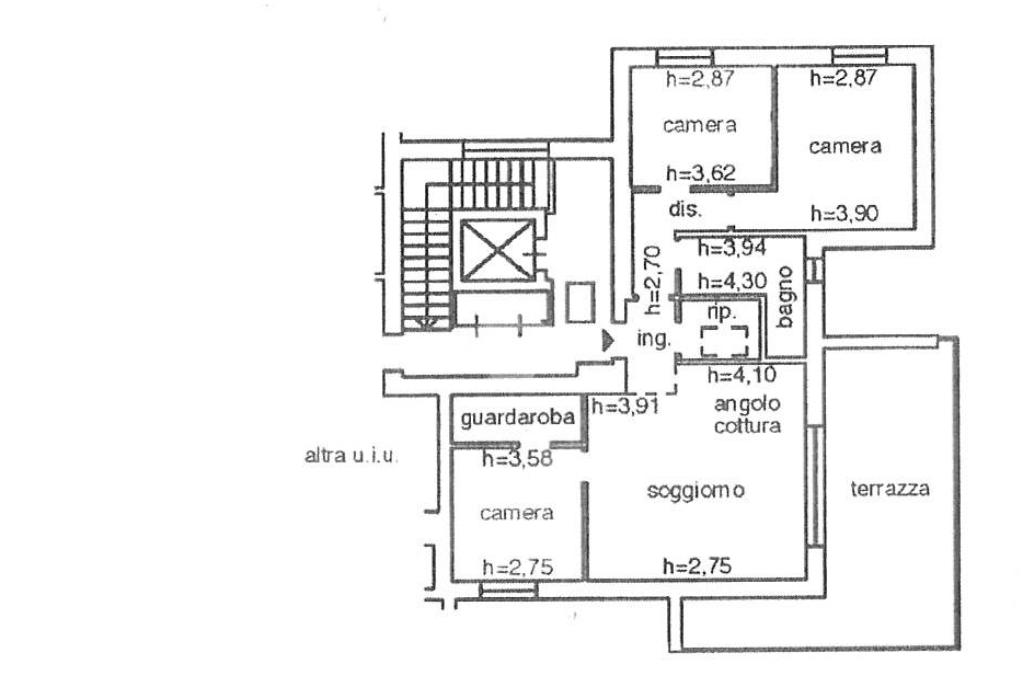
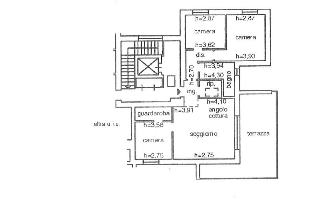
Nel cuore del comune di BUDRIO, proponiamo un attico di nuova costruzione, pronto per diventare la vostra prossima casa.

Situato al 2° ed ultimo piano di un edificio moderno, è composto da Ingresso, Soggiorno con Cucina a vista e affaccio su Terrazzo, disimpegno, 3 Camere da letto (di cui una con cabina armadio) e doppi servizi. Completa l'immobile ampia autorimessa di 28mq e Posto auto.

Gli spazi interni sono stati studiati per ottimizzare la vivibilità, con ambienti luminosi e ben distribuiti.
La posizione strategica nel comune di Budrio consente di godere di tu Nel cuore del comune di BUDRIO, proponiamo un attico di nuova costruzione, pronto per diventare la vostra prossima casa.

Situato al 2° ed ultimo piano di un edificio moderno, è composto da Ingresso, Soggiorno con Cucina a vista e affaccio su Terrazzo, disimpegno, 3 Camere da letto (di cui una con cabina armadio) e doppi servizi. Completa l'immobile ampia autorimessa di 28mq e Posto auto. tti i servizi e le comodità che la zona offre, mantenendo al contempo un'atmosfera tranquilla e riservata. La costruzione, completata nel 2024, assicura standard elevati in termini di efficienza energetica e qualità dei materiali, offrendo un'opportunità unica per chi desidera investire in una proprietà moderna e funzionale.

Per maggiori informazioni o per un eventuale sopralluogo ci potete contattare al numero 0516056506.

Forniamo valutazioni gratuite e senza impegno nel caso di necessità di vendita o locazione del vostro immobile.
Siamo inoltre affiancati da partner locali che possiedono specifiche competenze notarili, creditizie, tecniche e legali, sempre pronti ad offrire la loro consulenza.

Mostra tutto

Nelle vicinanze

Trasporto pubblico Trasporto pubblico
Granarolo
Granarolo
60 m
Granarolo Brenti
Granarolo Brenti
90 m
Scuole Scuole
Scuole Medie Pellegrino Matteucci
370 m
Scuola Elementare Anna Frank
430 m
Supermercati Supermercati
Coop Granarolo
610 m
Bar Bar
La Vela
440 m
Ristoranti Ristoranti
Trattoria Da Zia Allari
1,6 Km
Mostra tutto

Caratteristiche

Rif.:
61119678
Piano:
2 di 2 con ascensore (ultimo Piano)
Box:
1
Posti auto:
1
Terrazzi:
1
Camere da letto:
3
Mostra tutto
Prezzo Prezzo
€ 480.000
Rata mutuo Rata mutuo
€ 2.280 / mese
Proponi il tuo prezzoProponi il tuo prezzo

Classe Energetica

A4
A4
A4
A4
A4
A4
A4
A4
A4
EP invernale del fabbricato:
EP estiva del fabbricato:
Anno di costruzione:
2024
Riscaldamento:
Autonomo
Tipo impianto:
A pavimento
Tipo alimentazione:
Metano

Prezzo ridotto di €1 (4%%)

Ti interessa visionare l'immobile?

Fissa un appuntamento  Fissa un appuntamento

Richiedi informazioni

Clicca su Leggi per aprire l'informativa
* Questi campi sono obbligatori

Calcola il tuo mutuo

Semplice e senza impegno
Anticipo

( % )
Mutuo

( % )

pochi semplici passi

inserisci i tuoi dati
Questionario completato
Grazie per aver richiesto un appuntamento senza impegno con un nostro Consulente del Credito e Assicurativo.

Hai inserito correttamente tutti i dati necessari e a breve riceverai una e-mail con un link da convalidare per inviare i tuoi dati.
Affiliato
Azienda.net Srl
Via San Donato, 205/A 40057 Granarolo Dell'Emilia (BO)

Il nostro staff


  • Marcello Vandelli
    Responsabile

  • Elisa Dioli
    Coordinatrice

  • Lorenzo Bovinelli
    Responsabile
Via San Donato, 205/A 40057 Granarolo Dell'Emilia (BO)
Zona: Granarolo Dell'Emilia-Cadriano-Lovoleto-Quarto inferiore-Viadagola
Mostra su mappa
Orari: Tutti i giorni 09:00 - 13:00 e 15:00 - 20:00 il sabato 09:00 - 13:00 e pomeriggio su appuntamento
Affiliato
Azienda.net Srl
Via San Donato, 205/A 40057 Granarolo Dell'Emilia (BO)

2026 Tecnocasa Franchising S.p.A. - P. IVA 08365160152 - Via Monte Bianco 60/A 20089 Rozzano (MI). Ogni agenzia ha un proprio titolare ed è autonoma. Privacy policy | Policy utilizzo | Cookie policy