Porzione di bifamiliare in vendita

Granarolo Dell'Emilia, Via Larghe - Lovoleto
€ 446.000
Prezzo aggiornato
5 locali 5 locali
168 Mq 168 Mq
2 bagni 2 bagni

Porzione di bifamiliare in vendita

Granarolo Dell'Emilia, Via Larghe - Lovoleto

Descrizione annuncio

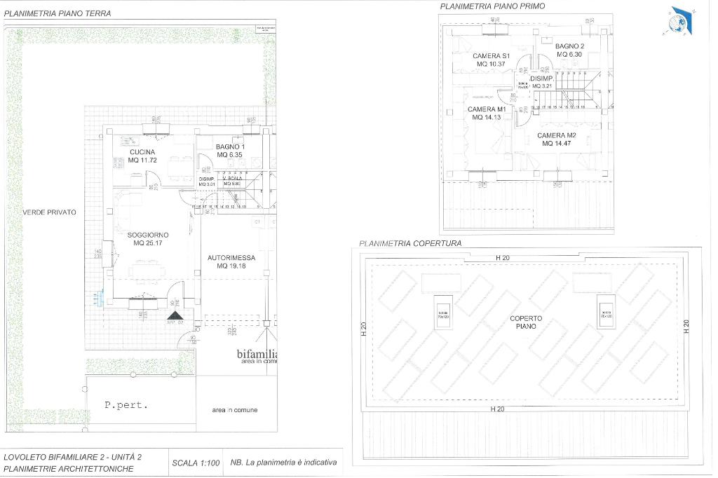
Nel cuore della tranquilla località di Lovoleto, nel comune di Granarolo dell'Emilia, è disponibile una porzione di bifamiliare di nuova costruzione. Questa residenza signorile, con una superficie di 168 mq commerciali, offre un ambiente accogliente e funzionale. Disposta su due livelli, la casa si compone di cinque locali ben distribuiti: tre camere da letto, di cui due matrimoniali, due bagni finestrati oltre ad una cucina abitabile e un luminoso soggiorno al piano terra. La proprietà include un box auto e un posto auto esterno, garantendo comodità e sicurezza. Il giardino privato rappresenta uno spazio ideale per momenti di relax all'aperto. In consegna per la primavera del 2027, questa abitazione combina design contemporaneo e comfort, offrendo un'opportunità unica per chi cerca una soluzione abitativa di qualità in una zona ben collegata e immersa nel verde.

Mostra tutto

Nelle vicinanze

Trasporto pubblico Trasporto pubblico
Lovoleto
Lovoleto
540 m
Paradiso
Paradiso
880 m
Scuole Scuole
Scuola Infanzia Tre-Sei
1,8 Km
Negozi Negozi
Negozi
1,4 Km
Bar Bar
Zero
1,7 Km
Ristoranti Ristoranti
Osteria del Fibbia
1,5 Km
Trattoria Le Stelle
1,5 Km
Ristoranti
1,6 Km
Pizzeria il Ghiottone
1,7 Km
Agriturismo Antico Noce
2,2 Km
Mostra tutto

Caratteristiche

Rif.:
61134967
Piano:
Basso di 2
Totale piani:
2
Box:
1
Posti auto:
1
Camere da letto:
3
Mostra tutto
Prezzo Prezzo
€ 446.000
Rata mutuo Rata mutuo
€ 2.105 / mese
Spese annue Spese annue
€ 0
Proponi il tuo prezzoProponi il tuo prezzo

Classe Energetica

A4
A4
A4
A4
A4
A4
A4
A4
A4
EP invernale del fabbricato:
EP estiva del fabbricato:
Anno di costruzione:
2027
Riscaldamento:
Autonomo
Tipo impianto:
A pavimento
Tipo alimentazione:
Altro

Prezzo ridotto di €1 (1%%)

Ti interessa visionare l'immobile?

Fissa un appuntamento  Fissa un appuntamento

Richiedi informazioni

Clicca su Leggi per aprire l'informativa
* Questi campi sono obbligatori

Calcola il tuo mutuo

Semplice e senza impegno
Anticipo

( % )
Mutuo

( % )

pochi semplici passi

inserisci i tuoi dati
Questionario completato
Grazie per aver richiesto un appuntamento senza impegno con un nostro Consulente del Credito e Assicurativo.

Hai inserito correttamente tutti i dati necessari e a breve riceverai una e-mail con un link da convalidare per inviare i tuoi dati.
Affiliato
Azienda.net Srl
Via San Donato, 205/A 40057 Granarolo Dell'Emilia (BO)

Il nostro staff


  • Marcello Vandelli
    Responsabile

  • Elisa Dioli
    Coordinatrice

  • Lorenzo Bovinelli
    Responsabile
Via San Donato, 205/A 40057 Granarolo Dell'Emilia (BO)
Zona: Granarolo Dell'Emilia-Cadriano-Lovoleto-Quarto inferiore-Viadagola
Mostra su mappa
Orari: Tutti i giorni 09:00 - 13:00 e 15:00 - 20:00 il sabato 09:00 - 13:00 e pomeriggio su appuntamento
Affiliato
Azienda.net Srl
Via San Donato, 205/A 40057 Granarolo Dell'Emilia (BO)

2025 Tecnocasa Franchising S.p.A. - P. IVA 08365160152 - Via Monte Bianco 60/A 20089 Rozzano (MI). Ogni agenzia ha un proprio titolare ed è autonoma. Privacy policy | Policy utilizzo | Cookie policy